4 bed Detached House

Offers Over £585,000

Dover Road, Folkestone, CT19

AVAILABLE

Gallery
Features
  • Stunning four-bedroom detached period home
  • Flexible accommodation with potential self-contained annexe
  • Fully renovated by the current vendors to a high specification
  • Bright conservatory overlooking the rear garden
  • Four well-proportioned bedrooms with sea views from select rooms
  • Converted garage providing study, wet room and utility room
  • Previously used as an annexe – ideal for multigenerational living or guests
  • Large west-facing rear garden enjoying afternoon and evening sun
  • Off-road parking to the front
  • Far-reaching sea views
Description
FOR SALE WITH BURNAP + ABEL... An exceptional four-bedroom detached period residence, meticulously renovated by the current owners to create a refined yet highly flexible family home, perfectly positioned to enjoy far-reaching sea views and a generous west-facing garden. Behind its attractive period façade, the property blends timeless character with contemporary luxury. The welcoming entrance hall, centred around a charming log burner, immediately sets the tone for the quality and warmth found throughout the home. The principal living space is arranged as an elegant lounge/diner, ideal for both everyday living and entertaining, flowing seamlessly into a bright conservatory that enjoys views over the garden and captures afternoon and evening sunlight. The kitchen has been thoughtfully designed to complement the home's period origins while offering modern functionality and style. Upstairs, the property offers four well-proportioned bedrooms, many benefiting from elevated sea views, served by a beautifully appointed family bathroom. The former garage has been expertly converted to provide a study, wet room and utility room, creating a versatile wing that has previously been used as a self-contained annexe—ideal for multigenerational living, guest accommodation or home working. Externally, the home continues to impress. The large west-facing rear garden offers an enviable outdoor retreat, perfect for entertaining, relaxation and enjoying spectacular sunsets. To the front, off-road parking provides practical convenience. This is a rare opportunity to acquire a fully renovated period home offering flexible accommodation, coastal views and generous outdoor space, all within easy reach of Folkestone's amenities, seafront and excellent transport links.

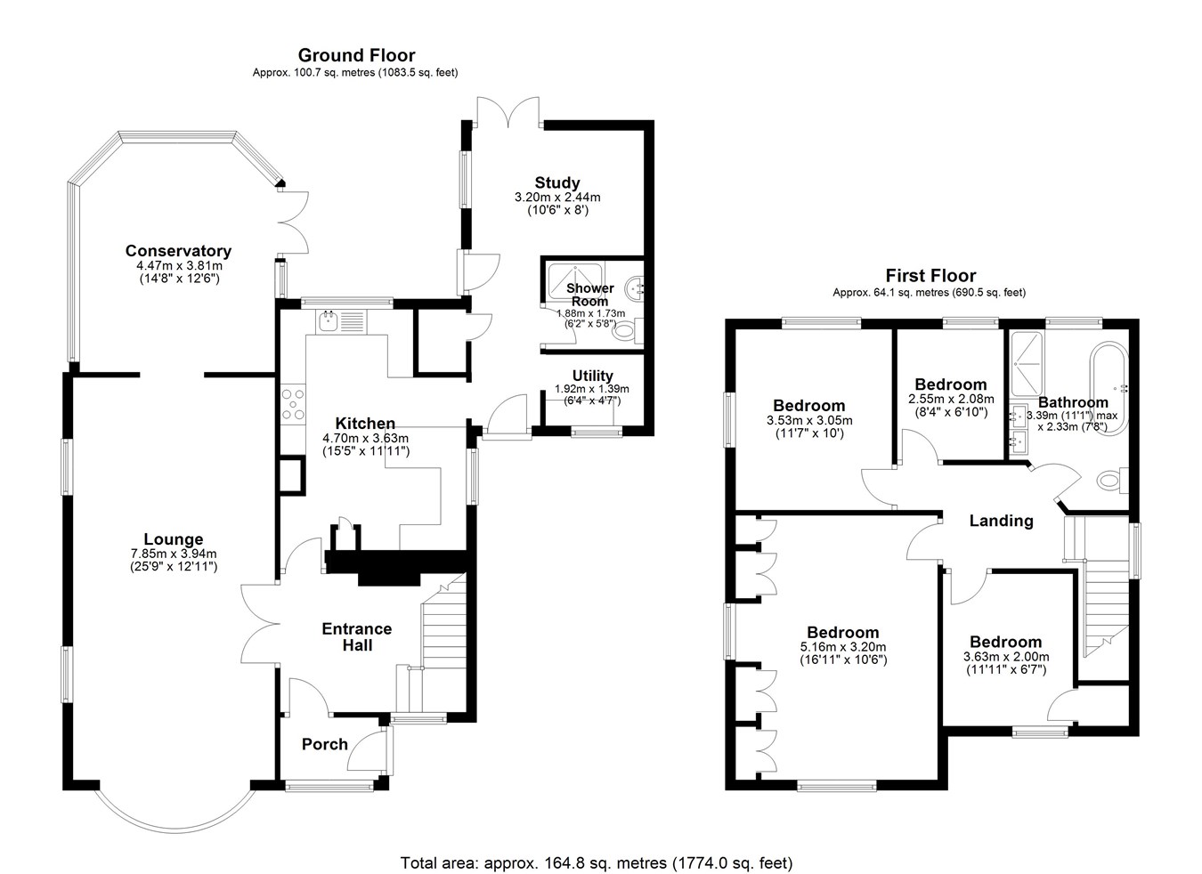
GROUND FLOOR


Porch


Entrance Hall


Lounge
25' 9" x 12' 11" (7.85m x 3.94m)

Conservatory
14' 8" x 12' 6" (4.47m x 3.81m)

Kitchen
15' 5" x 11' 11" (4.70m x 3.63m)

Study
10' 6" x 8' 0" (3.20m x 2.44m) Previously the annexe bedroom/lounge area.

Shower Room
6' 2" x 5' 8" (1.88m x 1.73m)

Utility Room
6' 4" x 4' 7" (1.93m x 1.40m) Previously used as the annexe kitchen.

FIRST FLOOR


First Floor Landing


Bedroom One
16' 11" x 10' 6" (5.16m x 3.20m)

Bedroom Two
11' 7" x 10' 0" (3.53m x 3.05m)

Bedroom Three
11' 11" x 6' 7" (3.63m x 2.01m)

Bedroom Four
8' 4" x 6' 10" (2.54m x 2.08m)

Bathroom
11' 1" x 7' 8" (3.38m x 2.34m)

OUTSIDE


Rear Garden


Off Road Parking
Floorplans
Map
Show Map
Agent Details

Burnap & Abel


Unit 11
Charlton Centre
High Street
Dover
Kent
CT16 1TT


Powered by Apex27