3 bed Semi-detached House

Guide Price £375,000

Canute Road, Deal, CT14

SSTC

Gallery
Features
  • Stunning three-bedroom end-terrace new-build family home
  • Light and airy lounge/dining room perfect for modern living
  • Stylish kitchen with Bosch appliances and integrated units
  • Downstairs WC and convenient utility room
  • Master bedroom with en-suite shower room
  • Contemporary family bathroom with modern fittings
  • Private rear garden ideal for outdoor living
  • Off-street parking with electric car charger
  • Double glazing and gas central heating throughout
  • Excellent location close to schools, shops, and the seafront
Description
TO LET WITH Burnap + Abel.. are delighted to offer to let this stunning three-bedroom end-terrace new-build family home, perfectly positioned in the highly sought-after Canute Road, Deal. Ideal for a range of potential tenants, this property combines modern living, style, and convenience in a fantastic location close to schools, shops, and the sea. The accommodation is thoughtfully designed and comprises a beautifully light and airy lounge/dining room, a stunning modern fitted kitchen with Bosch appliances, a downstairs toilet, and a utility room. Upstairs, you'll find three well-proportioned bedrooms, including the master with an en-suite, alongside a contemporary family bathroom. Outside, the property benefits from a private garden, off-street parking, and an electric car charger. Additional features include double glazing, gas central heating, and the reassurance of a new-build property. This is a fantastic opportunity to rent a high-quality family home in a desirable and convenient location. Please call 01303 258590.

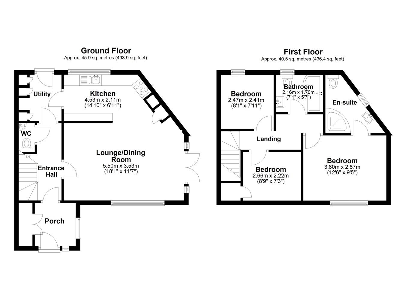
Ground Floor


Porch


W.C.


Lounge/Dining Room
18' 1" x 11' 7" (5.51m x 3.53m)

Kitchen
14' 10" x 6' 11" (4.52m x 2.11m)

Utility


First Floor


Bedroom One
12' 6" x 9' 5" (3.81m x 2.87m)

Bedroom Two
8' 9" x 7' 3" (2.67m x 2.21m)

Bedroom Three
8' 1" x 7' 11" (2.46m x 2.41m)

Bathroom
7' 1" x 5' 7" (2.16m x 1.70m)

Outside


Garden


Off Street Parking


Area Information
Deal is a town situated in Kent, which lies on the English Channel, eight miles north-east of Dover and eight miles south of Ramsgate. This former fishing and mining town became a 'limb port' of the Cinque Ports in 1278 and grew into the busiest port in England. In 1968, “Middle Street” was the first Conservation Area in Kent, its quaint streets and houses a reminder of its history along with many ancient buildings and monuments including, most notably, Deal and Walmer Castles . Today it is a seaside resort with its award-winning High Street, high-speed train Links to St Pancras and independent shops. An array of cafes and pubs sit along the picturesque seafront that is home to a sweeping pier.
Floorplans
Map
Show Map
Agent Details

Burnap & Abel


Unit 11
Charlton Centre
High Street
Dover
Kent
CT16 1TT


Powered by Apex27