4 bed Detached House

Guide Price £525,000

Hardy Road, St Margarets-At-Cliffe, Dover, CT15

AVAILABLE

Gallery
Features
  • Price range £525,000 to £550,000
  • Beautiful Four Bed Detached Family Home
  • Sunny Rear Garden
  • Garage & Off Street Parking
  • Two Shower Rooms
  • Easy Access To Deal, Walmer & Dover With A2 & A256 Close By
  • Ever Popular Location Of St Margaret's With A shop, Pub & School
  • Conservatory & Utility Room
  • Double Glazing & Gas Central Heating
Description
Draft Details...FOR SALE THROUGH BURNAP + ABEL...Price Range £525,000 - £550,000 Beautiful Four-Bedroom Detached Family Home – St Margaret's-At-Cliffe, Dover Set in the highly sought-after St Margaret's-At-Cliffe, Dover, this stunning four-bedroom detached family home is presented in immaculate condition throughout and offers a wonderful combination of space, style, and tranquility. The spacious and thoughtfully designed accommodation includes a bright and welcoming lounge, a modern kitchen opening into the dining area, and a conservatory that seamlessly connects to the sunny rear garden – perfect for relaxing or entertaining. A utility room adds convenience, while one of the four bedrooms is located on the ground floor alongside a modern shower room, making it ideal for guests or multi-generational living. Upstairs, you'll find three further well-proportioned bedrooms and an additional stylish shower room. Outside, the property boasts a private sunny rear garden, a large garage, and a driveway providing ample parking. The home also benefits from double glazing and gas central heating, ensuring year-round comfort. Perfect for a growing family or anyone seeking a peaceful coastal location, this home offers the ideal blend of village charm and modern convenience. For your chance to view call Burnap + Abel on 01304 279107.

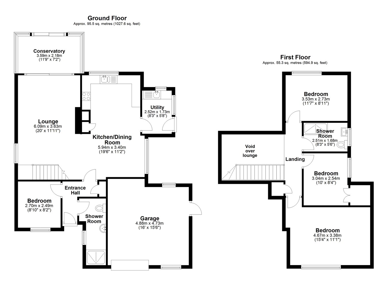
Ground Floor


Entrance Hall


Lounge
20' 0" x 11' 11" (6.10m x 3.63m)

Kitchen/Dining Area
19' 6" x 11' 2" (5.94m x 3.40m)

Utility
8' 3" x 5' 8" (2.51m x 1.73m)

Conservatory
11' 9" x 7' 2" (3.58m x 2.18m)

Bedroom Four/Office
8' 10" x 8' 2" (2.69m x 2.49m)

Shower Room


First Floor


Bedroom One
15' 4" x 11' 1" (4.67m x 3.38m)

Bedroom Two
11' 7" x 8' 11" (3.53m x 2.72m)

Bedroom Three
10' 0" x 8' 4" (3.05m x 2.54m)

Shower Room
8' 3" x 5' 6" (2.51m x 1.68m)

Outside


Garden


Garage & Off Street Parking


Area Information
The village of St Margaret's at Cliffe offers local shopping, post office, doctor's surgery with pharmacy, newsagent/general store, health club with swimming pool, primary school and churches, whilst The Bay itself is sheltered for bathing, fishing, sailing etc. The cliff top to either side of The Bay is mainly in the care of the National Trust and offers some delightful walks. There are golf courses at nearby Kingsdown and Deal with St George's at Sandwich (the venue of the British Open). The Cathedral City of Canterbury offers an excellent shopping centre together with leisure interest, theatres and county cricket. Excellent links to the continent via the Port of Dover, the Channel Tunnel and Eurostar from Ashford and the high speed train to London (St Pancras), 75 minutes from Martin Mill station (approx. 2 miles).
Floorplans
Map
Show Map
Agent Details

Burnap & Abel


Unit 11
Charlton Centre
High Street
Dover
Kent
CT16 1TT


Powered by Apex27