4 bed Terraced

Guide Price £280,000

Alfred Road, Dover, CT16

SSTC

Gallery
Features
  • Price Range £280,000 - £290,000
  • Off Street Parking TO The Front & Rear
  • Conservatory
  • Two Bathrooms
  • Garden
  • Four Bedroom House
  • Walking Distance To Schools & Shops
  • Ideal For First Time Buyers & Those With A Growing Family
Description
Draft Details...FOR SALE THROUGH BURNAP + ABEL...Price Range £280,000 - £290,000 Located in the highly sought-after Alfred Road, this spacious and well-presented four-bedroom terraced home offers the perfect blend of comfort, practicality, and convenience. The accommodation features a welcoming lounge, a separate dining area, a well-appointed kitchen, and a conservatory – providing a light-filled space to relax and enjoy views of the garden. With four bedrooms and two bathrooms, the home is ideal for larger families or those needing extra room. Outside, you'll find a spacious garden perfect for relaxing or entertaining, as well as off-street parking to both the front and rear. Additional benefits include double glazing and gas central heating for year-round comfort. Situated within walking distance of a number of schools, shops, and local amenities, this property combines a prime location with versatile living space – making it a fantastic choice for your next family home. For your chance to view call Burnap + Abel on 01304 279107.

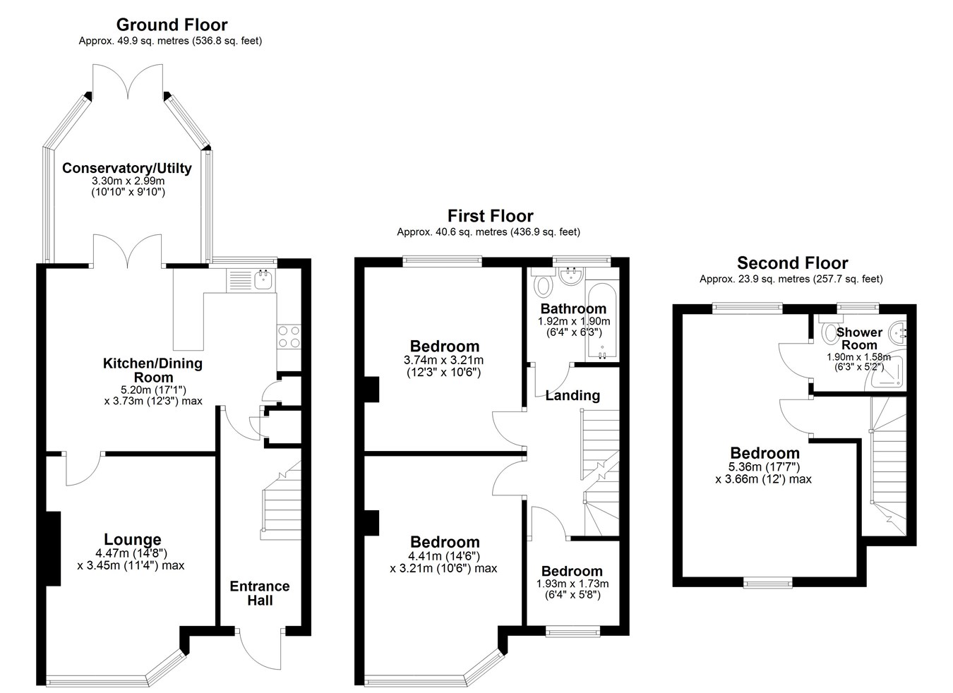
Ground Floor


Entrance Hall


Lounge
14' 8" x 11' 4" (4.47m x 3.45m)

Kitchen/Diner
17' 1" x 12' 3" (5.21m x 3.73m)

Conservatory
10' 10" x 9' 10" (3.30m x 3.00m)

First Floor


Bedroom Two
14' 6" x 10' 6" (4.42m x 3.20m)

Bedroom Three
12' 3" x 10' 6" (3.73m x 3.20m)

Bedroom Four
6' 4" x 5' 8" (1.93m x 1.73m)

Bathroom
6' 4" x 6' 3" (1.93m x 1.91m)

Second Floor


Bedroom One
17' 7" x 12' 0" (5.36m x 3.66m)

Shower Room
6' 3" x 5' 2" (1.91m x 1.57m)

Outside


Garden


Off Street Parking
The property has off street parking to the front and rear.

Area Information
This property is situated in a popular no through road and just a short walk away from a good selection of primary and secondary schools, including both Boys and Girls Grammar. Within the local area is a good range of shops including Morrisons and Asda and Dover town is also nearby. There are excellent access routes to the A2/M2 and the A20/M20 and for anyone needing to commute by train then Dover Priory, with its fast links to London St Pancras in just 1 hour 5 minutes, is only a short drive away. With St James's development close by with a cinema complex, a range of restaurants and High Street shops including Next and Marks & Spencer.
Floorplans
Map
Show Map
Agent Details

Burnap & Abel


Unit 11
Charlton Centre
High Street
Dover
Kent
CT16 1TT


Powered by Apex27