4 bed Detached House

£425,000

Cornwallis Avenue, Folkestone, CT19

SSTC

Gallery
Features
  • Extended Four Bedroom Detached House
  • Sought After Area
  • No Onward Chain
  • Garage and off road parking
  • Currently Vacant
  • Close to West Station
Description
FOR SALE WITH BURNAP + ABEL... Welcome to this stunning extended 4 bedroom detached house located on Cornwallis avenue in the desirable area of Folkestone. This property boasts a spacious lounge, study, kitchen, dining room, convenient ground floor W.C and a separate utility room, Upstairs you will find four well-appointed bedrooms, including a family bathroom. Outside, the property offers an integral garage, driveway for parking, and a beautiful garden – ideal for outdoor entertaining or simply relaxing in the sunshine. Situated in a sought-after location with no chain and currently vacant, this property presents an exciting opportunity to make it your own. Don't miss out on this fantastic chance to secure your dream home in Folkestone!

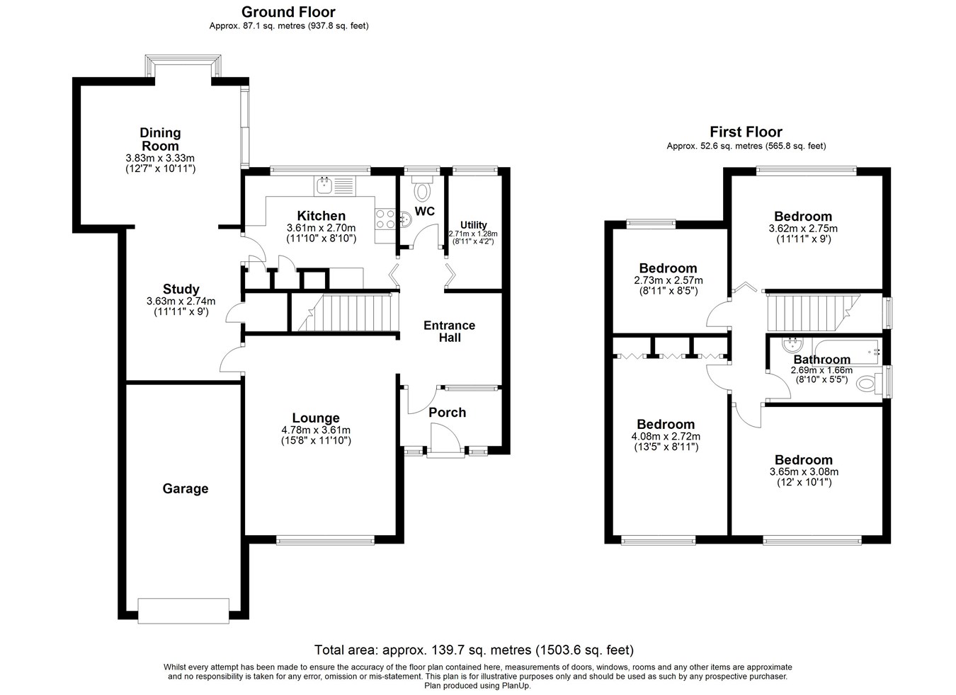
Ground Floor


Porch


Entrance Hall


Lounge
15' 8" x 11' 10" (4.78m x 3.61m)

Dining Room
12' 7" x 10' 11" (3.84m x 3.33m)

Study
12' 7" x 10' 11" (3.84m x 3.33m)

Kitchen
11' 10" x 8' 10" (3.61m x 2.69m)

Utility
8' 11" x 4' 2" (2.72m x 1.27m)

W.C


First Floor


Bedroom
13' 5" x 8' 11" (4.09m x 2.72m)

Bedroom
11' 11" x 9' 0" (3.63m x 2.74m)

Bathroom
8' 10" x 5' 5" (2.69m x 1.65m)

Bedroom
11' 11" x 9' 0" (3.63m x 2.74m)

Bedroom
12' 0" x 10' 1" (3.66m x 3.07m)

Outside


Garden


Garage


Driveway
Floorplans
Map
Show Map
Agent Details

Burnap & Abel


Unit 11
Charlton Centre
High Street
Dover
Kent
CT16 1TT


Powered by Apex27