5 bed Detached House

£975,000

Fernfield Lane, Hawkinge, Folkestone, CT18

SSTC

Gallery
Features
  • Stunning 5 bedroom detached home
  • Exclusive private gated development
  • Spacious lounge and open-plan kitchen/diner/snug
  • Separate utility room and ground floor W.C.
  • Dedicated study – ideal for home working
  • Two en-suite bedrooms plus a family bathroom
  • Detached double garage with studio room above
  • Large south-facing rear garden with private woodland
  • Energy-efficient warm air source heat pump
  • EV Car Charging Point
Description
FOR SALE WITH BURNAP + ABEL... Plot 13 at Wildflower Meadows is a stunning five-bedroom detached home located within an exclusive private gated development in Hawkinge, Kent. Thoughtfully designed for modern family living, the property features a spacious lounge, an impressive open-plan kitchen/diner/snug, a separate utility room, dedicated study, and a ground floor W.C. Upstairs offers five generous bedrooms, including two with en-suite bathrooms, as well as a stylish family bathroom. Outside, the home boasts a large south-facing rear garden with its own private woodland, a detached double garage with a versatile studio room above, and ample off-road parking. Built with energy efficiency in mind, the property includes a warm air source heat pump and an EV charging point. With no onward chain and ready to move into, this beautifully finished home offers space, privacy, and high-spec features in a peaceful countryside setting, all within a secure gated community.

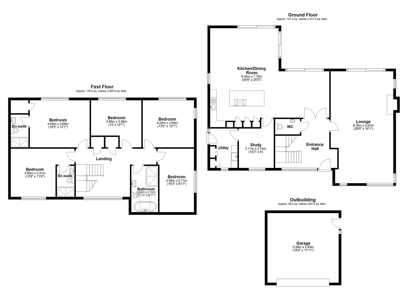
NAAverageStandardNANAGROUND FLOOR


Entrance Hall


Lounge
28' 9" x 16' 1" (8.76m x 4.90m)

Kitchen/Dining Room/Snug
30' 8" x 25' 5" (9.35m x 7.75m)

Home Office / Study
10' 2" x 9' 0" (3.10m x 2.74m)

Utility Room


W.C


FIRST FLOOR


First Floor Landing


Bedroom One
15' 5" x 12' 1" (4.70m x 3.68m)

En-Suite


Bedroom Two
12' 8" x 11' 6" (3.86m x 3.51m)

En-Suite


Bedroom Three
16' 3" x 8' 11" (4.95m x 2.72m)

Bedroom Four
13' 2" x 12' 1" (4.01m x 3.68m)

Bedroom Five
13' 0" x 12' 1" (3.96m x 3.68m)

Bathroom
11' 11" x 6' 11" (3.63m x 2.11m)

OUTSIDE


Double Garage


Studio Room above the garage
Including a shower room with Shower, wash hand basin and W.C.

Off Road Parking


Rear Garden
Floorplans
Map
Show Map
Agent Details

Burnap & Abel


Unit 11
Charlton Centre
High Street
Dover
Kent
CT16 1TT


Powered by Apex27